Prodej řadového domu 3+1 se zahrádkou a garáží, Svitavy

Svitavy,

3+1,

100 m2

3 490 000

Hledáte vlastní dům se zahrádkou a garáží v klidné lokalitě? Nabízíme k prodeji řadový rodinný dům ve Svitavách, v příjemné a výborně dostupné části města mezi ulicemi Lanškrounská a Lačnovská. Nemovitost se dvěma samostatnými vstupy a pozemkem o celkové výměře 247 m² představuje ideální příležitost pro vybudování domova přesně podle vašich představ.


Dispozice a technické parametry domu

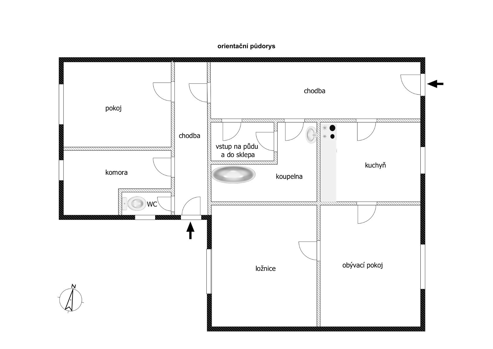
Obytná část domu o dispozici 3+1 se rozkládá na zastavěné ploše 91 m². Velkou výhodou je, že celé bydlení je situováno v přízemí bez nutnosti překonávat více schodů (u vstupu je pouze jeden nízký schůdek).

  • Dispozice: 3+1 (vše v přízemí)
  • Užitná plocha: 85 m²
  • Celková plocha pozemku: 247 m²
  • Úložné prostory: Půda, sklep, spižírna a dílna

Dům s potenciálem pro rekonstrukci

Objekt je určen ke kompletní rekonstrukci, což novému majiteli umožňuje kreativní úpravy interiéru i exteriéru. Praktickým doplňkem je dílna, kterou lze využít pro kutilské práce nebo jako sklad zahradního vybavení a dřeva.

Zahrada, garáž a parkování

Za domem se nachází útulný dvorek využívaný jako zahrada. Je přístupný přímo z domu i z boční ulice Lačnovská. Prostor je jako stvořený pro pergolu, grilování, bazén nebo pěstování bylinek.

Součástí prodeje je také garáž. Aktuálně slouží jako sklad, ale díky připravenému výklenku ve zdi ji lze snadno upravit pro přímý vjezd z ulice. Parkování je možné také přímo před domem v ulici Lačnovská.

Inženýrské sítě a vytápění

Dům je připraven na modernizaci technického zázemí:

  • Vytápění: Plynový kotel + lokální kamna na tuhá paliva v jedné z místností.
  • Plyn: Nová plynová přípojka instalována u vstupu do domu.
  • Kanalizace: Aktuálně řešeno septikem s přepadem, ale nová přímá kanalizační přípojka je již vybudována a připravena v ulici Lanškrounská k připojení.
  • Okna: U hlavního vstupu již proběhla výměna dvou oken za plastová protihluková s dvojsklem.

Financování a prohlídky

Dům je funkční a volný ihned k nastěhování. Koupi lze financovat hypotečním úvěrem, se kterým vám rádi pomůžeme a vybereme nejvýhodnější řešení na míru. Pro budoucí rekonstrukci vám můžeme doporučit prověřené řemeslníky.

Cena zahrnuje: Provizi RK, kompletní právní servis a advokátní úschovu peněz.

Zaujala vás tato nabídka? Kontaktujte nás pro bližší informace nebo si domluvte osobní prohlídku.

Poznámka: Veškeré zveřejněné údaje obsažené v tomto inzerátu mají pouze informativní charakter a nejsou nabídkou ve smyslu § 1731 nebo § 1732 občanského zákoníku, ani se nejedná o veřejný příslib dle § 1733 občanského zákoníku.

Video

Napište nám a my se vám ozveme

GDPR

... nebo kontaktujte přímo makléře

Mgr. Lenka Zimmermannová Bolcková​

+420 604 571 889
bolckova@domingoreality.cz
Přejít nahoru